Seltene Gelegenheit: 3-Zimmer-Erdgeschoss-Whg. mit Wintergarten & Carport in zentraler Lage von Lauf
91207 Lauf, Wohnung zur Miete
Kontaktdaten
-
NameHerr Dirk Frühauf
-
FirmaSchweidler Immobilien
-
AdresseWäschgasse 5
91207 Lauf -
Tel. Zentrale
Objektdaten
-
Objekt-IDN5517
-
ObjekttypWohnung
-
Adresse91207 Lauf
-
Wohnfläche ca.110 m²
-
Gesamtfläche ca.110 m²
-
Zimmer3
-
HeizungsartZentralheizung
-
Wesentlicher EnergieträgerGas
-
Baujahr1991
-
Zustandgepflegt
-
Kaution2.500,00 EUR
-
Kaltmiete1.190,00 EUR
-
Nebenkosten240,00 EUR
-
Heizkostenin der Warmmiete enthalten
-
Gesamtmiete1.430,00 EUR (Heizkosten enthalten)
Ausstattung / Merkmale
- ✓ Abstellraum
- ✓ Carport
- ✓ Dusche
- ✓ Fliesenboden
- ✓ Laminatboden
- ✓ Tageslichtbad
Energieausweis
-
EnergieausweistypVerbrauchsausweis
-
Gültig bis10.06.2035
-
Baujahr lt. Energieausweis1991
-
Wesentlicher EnergieträgerGas
-
Endenergieverbrauch82,70 kWh/(m²·a)
-
Warmwasser enthaltenja
-
EnergieeffizienzklasseC
Objektbeschreibung
Beschreibung
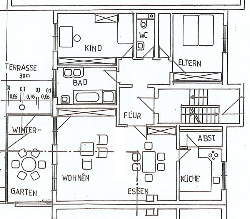
Diese charmante 3-Zimmer-Erdgeschosswohnung befindet sich in einem gepflegten Mehrfamilienhaus in attraktiver, zentraler Lage von Lauf an der Pegnitz. Eine seltene Gelegenheit für alle, die komfortables Wohnen mit einem besonderen Wohnambiente verbinden möchten.
Bereits beim Betreten der Wohnung empfängt Sie ein großzügiger Flur mit ausreichend Platz für eine Garderobe und zusätzlichen Stauraum. Von hier aus sind alle Räume bequem erreichbar. Zwei helle, gut geschnittene Zimmer mit bodentiefen Fenstern bieten vielseitige Nutzungsmöglichkeiten – ob als Kinderzimmer, Homeoffice oder Elternschlafzimmer. Die großen Fensterflächen sorgen für eine angenehme, lichtdurchflutete Atmosphäre und ein freundliches Wohngefühl. Das Herzstück der Wohnung ist das großzügige Wohnzimmer, große Fensterflächen schaffen auch hier ein helles und einladendes Ambiente. Vom Wohnbereich aus gelangen Sie direkt in den Wintergarten sowie auf die angrenzende Terrasse – ideale Orte zum Entspannen und Genießen zu jeder Jahreszeit. Die Küche ist direkt vom Wohnzimmer aus erreichbar und bietet ausreichend Platz zur individuellen Gestaltung, da derzeit keine Einbauküche vorhanden ist. Angrenzend an die Küche befindet sich ein praktischer Vorratsraum, der zusätzlichen Stauraum für Lebensmittel und Haushaltsutensilien bietet und für eine optimale Organisation sorgt. Das moderne, großzügige Tageslichtbad überzeugt mit einer bodentiefen Dusche, WC und Doppelwaschbecken. Ein zusätzliches Gäste-WC sorgt für weiteren Komfort im Alltag.
Zur Wohnung gehört außerdem ein eigenes Kellerabteil. Ein Carport-Stellplatz für monatlich EUR 60,– rundet dieses attraktive Angebot ab.
Diese Wohnung vereint eine durchdachte Raumaufteilung, helle Wohnräume und eine hervorragende Lage – ideal für Paare, kleine Familien oder Berufstätige im Homeoffice.
Haben wir Ihr Interesse geweckt? Dann vereinbaren Sie doch einfach Ihren Termin in dieser tollen Wohnung in Lauf! Wir freuen uns auf Ihre Anfrage!
Sonstige Informationen
Alle Angaben, Darstellungen und Berechnungen beruhen auf Informationen des Eigentümers. Eine Gewähr für die Richtigkeit dieser Informationen kann deshalb durch die Fa. Michael Schweidler Immobilien nicht übernommen werden.
Einige Textpassagen dieses Exposés wurden mit Hilfe von KI-Tools optimiert. Selbstverständlich erfolgte eine sorgfältige Prüfung aller Inhalte durch unser Team.
Lage
Die hier zur Vermietung stehende 3-Zimmer-Wohnung liegt in Lauf, nur ein paar Schritte von der Pegnitzwiese entfernt. Perfekt für eine kleine Joggingrunde oder einen Spaziergang nach Feierabend. Richtung Innenstadt ist es ein Katzensprung: Der Laufer Marktplatz mit Cafés, Läden und allem, was man im Alltag braucht, ist schnell erreicht. Und wer regelmäßig nach Nürnberg pendelt oder einfach gern flexibel bleibt, freut sich über die S-Bahn: Der Bahnhof Lauf (links Pegnitz) bzw. die S-Bahn-Anbindung Richtung Nürnberg ist in wenigen Minuten zu Fuß erreichbar.
Die ungefähre Position der Immobilie auf Google Maps ansehen (Link auf externe Website)










