Ihr Geschäft!!! Preiswerte EG-Gewerbefläche mit flexibler Nutzung in zentraler Lage von Röthenbach
90552 Röthenbach a. d. Pegnitz, Bürofläche zur Miete
Kontaktdaten
-
NameHerr Jörg Ulrich
-
FirmaSchweidler Immobilien
-
AdresseWäschgasse 5
91207 Lauf -
Tel. Zentrale
Objektdaten
-
Objekt-IDN5498
-
ObjekttypenBüro/Praxis, Bürofläche
-
Adresse90552 Röthenbach a. d. Pegnitz
-
Nutzfläche ca.52,25 m²
-
Bürofläche ca.52,25 m²
-
Gesamtfläche ca.52,25 m²
-
Zimmer2,5
-
HeizungsartZentralheizung
-
Wesentlicher EnergieträgerGas
-
Baujahr1960
-
Zustandgepflegt
-
Mieterprovision (gewerblich)3 MM (zzgl. MwSt) Die Maklerprovision beträgt 3,57 Monatsmieten inkl. 19 % MwSt. für den Mieter. Bei Verträgen mit einer Laufzeit von mehr als 5 Jahren beträgt die Provision 3,57 % der 10-Jahresmiete inkl. 19 % MwSt. Siehe Provisionshinweis.
-
Kaution1.260,00 EUR
-
Kaltmiete420,00 EUR
-
Nebenkosten120,00 EUR
-
Heizkostenin der Warmmiete enthalten
-
Gesamtmiete540,00 EUR (Heizkosten enthalten)
Ausstattung / Merkmale
- ✓ Abstellraum
- ✓ Gewerblich nutzbar
- ✓ Laminatboden
Energieausweis
-
EnergieausweistypBedarfsausweis
-
Gültig bis07.01.2033
-
Baujahr lt. Energieausweis1960
-
Wesentlicher EnergieträgerGas
-
Endenergiebedarf166,70 kWh/(m²·a)
-
EnergieeffizienzklasseF
Objektbeschreibung
Beschreibung
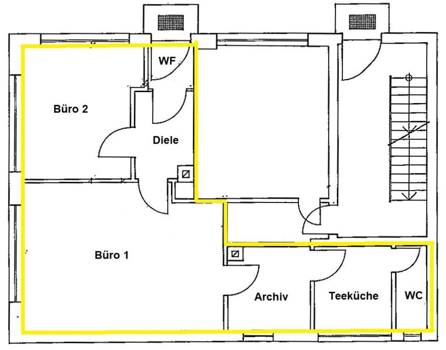
Diese ebenerdige, helle und äußerst gepflegte Gewerbeeinheit mit einer Nutzfläche von ca. 52 m² bietet ideale Voraussetzungen für die Nutzung als Büro-, Dienstleistungs- oder Beautyfläche. Die durchdachte und funktionale Raumaufteilung ermöglicht eine flexible Gestaltung und lässt sich individuell an unterschiedliche Nutzungskonzepte anpassen.
Die Einheit eignet sich sowohl als großzügiges 2-Zimmer-Büro als auch für die Einrichtung eines Kosmetik- oder Beautystudios. Ergänzt wird das Raumangebot durch ein kleines Durchgangszimmer, eine separate Teeküche sowie ein WC, wodurch eine klare Trennung von Arbeits-, Behandlungs- und Nebenflächen möglich ist.
Die ebenerdige Ausführung sorgt für eine komfortable Erreichbarkeit für Kunden, Klienten und Mitarbeiter, während die verkehrsgünstige Lage die Attraktivität des Standorts zusätzlich unterstreicht.
Überzeugen Sie sich im Rahmen einer unverbindlichen Besichtigung selbst von den vielseitigen Nutzungsmöglichkeiten dieser ansprechenden Gewerbefläche.
Sonstige Informationen
Alle Angaben, Darstellungen und Berechnungen beruhen auf Informationen des Vermieters. Eine Gewähr für die Richtigkeit dieser Informationen kann deshalb durch die Fa. Schweidler Immobilien nicht übernommen werden. Einige Textpassagen dieses Exposés wurden mit Hilfe von KI-Tools optimiert. Selbstverständlich erfolgte eine sorgfältige Prüfung aller Inhalte durch unser Team.
Lage
Röthenbach an der Pegnitz ist eine Stadt mit rund 12.700 Einwohnern im Landkreis Nürnberger Land und zeichnet sich durch ihre gute Anbindung an den Wirtschaftsraum Nürnberg aus.
Die angebotene Gewerbefläche befindet sich in absolut verkehrsgünstiger Lage, direkt an der Ortsdurchgangsstraße, und profitiert somit von einer hohen Sichtbarkeit sowie regem Durchgangsverkehr. Das Autobahnkreuz Nürnberg ist in nur ca. 4 km erreichbar, die Nürnberger Innenstadt liegt etwa 13 km westlich und ist ebenfalls schnell zu erreichen.
Ein weiterer Standortvorteil sind die in unmittelbarer Nähe vorhandenen Parkmöglichkeiten sowie eine nahegelegene Bushaltestelle, die eine gute Erreichbarkeit für Kunden, Besucher und Mitarbeiter gewährleisten.
Weitere Informationen zur Stadt Röthenbach an der Pegnitz finden Sie unter www.roethenbach.de.
Die ungefähre Position der Immobilie auf Google Maps ansehen (Link auf externe Website)







