Großzügig, hell & modern! Attraktive Bürofläche im 1. Obergeschoss mit bester Sichtlage in Lauf
91207 Lauf, Bürofläche zur Miete
Kontaktdaten
-
NameHerr Jörg Ulrich
-
FirmaSchweidler Immobilien
-
AdresseWäschgasse 5
91207 Lauf -
Tel. Zentrale
Objektdaten
-
Objekt-IDN5470
-
ObjekttypenBüro/Praxis, Bürofläche
-
Adresse91207 Lauf
-
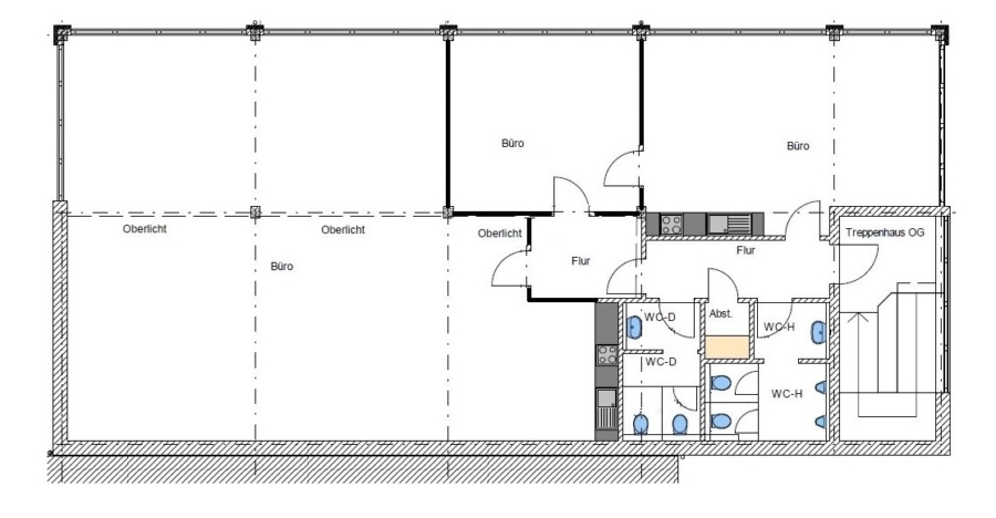
Bürofläche ca.181 m²
-
Gesamtfläche ca.221 m²
-
Zimmer3
-
HeizungsartZentralheizung, Fußbodenheizung
-
Wesentliche EnergieträgerGas, Strom
-
Baujahr2015
-
Zustandneuwertig
-
Mieterprovision (gewerblich)3 Monatsmieten zzgl. MwSt. Die Maklerprovision beträgt 3,57 Monatsmieten inkl. 19 % MwSt. für den Mieter. Bei Verträgen mit einer Laufzeit von mehr als 5 Jahren beträgt die Provision 3,57 % der 10-Jahresmiete inkl. 19 % MwSt. Siehe Provisionshinweis.
-
Kaltmiete1.993,50 EUR
-
Nebenkosten380,00 EUR
-
Heizkostenin der Warmmiete enthalten
-
Gesamtmiete2.373,50 EUR (Heizkosten enthalten)
Ausstattung / Merkmale
- ✓ Gewerblich nutzbar
- ✓ Kunststoffboden
Energieausweis
-
EnergieausweistypVerbrauchsausweis
-
Gültig bis12.06.2035
-
Baujahr lt. Energieausweis2015
-
Wesentliche EnergieträgerGas, Strom
-
Endenergieverbrauch Strom8,20 kWh/(m²·a)
-
Endenergieverbrauch Wärme47,80 kWh/(m²·a)
-
Warmwasser enthaltenja
Objektbeschreibung
Beschreibung
Die zur Vermietung angebotene Bürofläche erstreckt sich über das gesamte 1. Obergeschoss eines repräsentativen Büro- und Dienstleistungszentrums in attraktiver Sichtlage von Lauf-Wetzendorf. Der Zugang erfolgt über ein großzügiges, gepflegtes Treppenhaus. Die helle und moderne Mietfläche verfügt über insgesamt ca. 221 m² und unterteilt sich in ein Großraumbüro mit integriertem, offenen Küchenbereich (inkl. Einbauküche) sowie zwei abgeschlossene Büro- oder Konferenzräume. Das Raumangebot runden die getrennten Damen- und Herrensanitärräume, ein Abstellraum und der Flurbereich ab.
Die Ausstattung der Büroflächen ist modern, funktional und hochwertig. Besonders hervorzuheben sind:
- angenehmes Raumgefühl durch großzügige Raumhöhe
- lichtdurchflutete, freundliche Arbeitsbereiche
- abgehängte Decken mit integrierter Beleuchtung
- strukturierte Kabelschächte für moderne Arbeitsplätze
- effiziente, zeitgemäße Architektur
- gepflegte Sanitärbereiche (Damen und Herren getrennt)
- inkl. Einbauküchenzeile
- 4 Außenstellplätze inklusive
Überzeugen Sie sich selbst im Rahmen einer unverbindlichen Besichtigung von den vielen Vorteilen dieser attraktiven und verkehrsgünstig gelegenen Gewerbefläche.
Sonstige Informationen
Alle Angaben, Darstellungen und Berechnungen beruhen auf Informationen des Vermieters. Eine Gewähr für die Richtigkeit dieser Informationen kann deshalb durch die Fa. Schweidler Immobilien nicht übernommen werden. Einige Textpassagen dieses Exposés wurden mit Hilfe von KI-Tools optimiert. Selbstverständlich erfolgte eine sorgfältige Prüfung aller Inhalte durch unser Team.
Lage
Die zur Vermietung stehende Fläche befindet sich in einer für Gewerbetreibende besonders interessanten Lage in einem kleinen Gewerbegebiet am südwestlichen Stadtrand der Kreisstadt Lauf an der Pegnitz. Besonders interessant für viele Gewerbetreibende ist die direkte "Sichtlage" an der Staatsstraße 2241, die Ausfallsstraße neben der ebenfalls vielbefahrenen B14 am anderen Ufer der Pegnitz. Aber auch der in diesem Gewerbegebiet vorhandene und etablierte Branchenmix kann ein Katalysator für Ihr Geschäftsvorhaben in diesem interessanten Neubau sein. Weitere Informationen zu der Stadt Lauf finden Sie im Internet unter www.lauf.de
Die ungefähre Position der Immobilie auf Google Maps ansehen (Link auf externe Website)











